Bungalow bureau 11,9 m² [16 pieds]

Bungalow offrant 11,89 m² de surface (4,88 x 2,44 m). Isolation laine de verre toit (100 mm) et sol (60 mm), mousse PU en parois murales (60 mm). 2 fenêtres oscillo-battante. 1 porte ouvrant sur l’extérieur. 2 rampes d’éclairage LED. 2 prises électriques doubles. Chauffage convecteur électrique 2kW.  Décor intérieur blanc, revêtement de sol gris. Marquage CE et conformes aux normes incendie. Livraison directe usine.

5 998  TTC

Nos clients sont ravis de leurs achats

custom logoGlobal EquipementsGlobal Equipements
4.7 Étoiles - Basé sur 637 Avis des utilisateurs

Equipement standard : 1 porte | 2 fenêtres | 2 rampes d’éclairage LED | 2 prises électriques doubles | Chauffage convecteur électrique 2kW
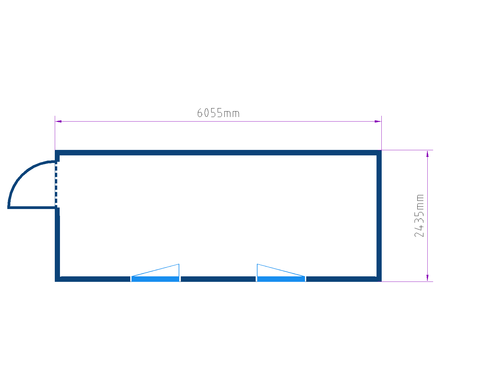
DIMENSIONS
Longueur : 4,885 m (extérieur) 4,690 m (intérieur)
Largeur : 2,435 (extérieur) 2,240 m (intérieur)
Hauteur : 2,591 m (extérieur) 2,340 m (intérieur)
Poids : 1,75 T
Surface : 11,89 m²
Cadre du sol : 

Profils en acier laminés à froid et soudés, 4 coins de conteneurs soudés
Traverses de sol sur le pourtour : 3 mm
Traverse de sol : en profil Ω, s = 2,5 mm
Passages de fourches : 2 passages de fourches sur la longueur (dimensions intérieures des passages de fourches: 352 x 85 mm, passages de fourches centrés: 2.050 mm / facultatif 950 mm)
Poteaux d’angle : avec profils en acier soudés à froid et vissés aux cadres du sol et du toit Ep. 4 mm

Cadre du toit : 

Profils en acier laminés à froid et soudés, 4 coins de conteneurs soudés
Traverses du toit sur la longueur : 3 mm
Traverses du toit sur la largeur : 3 mm
Toiture : tôle galvanisée avec double pli, épaisseur de 0,60 mm

Sol : 

Isolation thermique : Laine de verre 60 mm – Comportement au feu A1 (non inflammable) selon la norme EN 13501-1
Protection sous isolant : Plaques de tôle galvanisées, épaisseur 0,6 mm
Plancher : Bois épaisseur 22 mm
Revêtement de sol : Revêtement PVC aux raccords soudés, remontés sur les bords. Epaisseur 2 mm. Couche d’usure 0,7 mm. Anti-dérapant R10

Toit :

Isolation thermique : Laine de verre 100 mm – Comportement au feu A1 (non inflammable) selon la norme EN 13501-1
Habillage plafond : Placoplâtre avec tôle laquée (Plaque de placoplâtre 9,5 mm et Tôle + 0,6 mm)
couleur: blanc (semblable au RAL 9010)
Prises de connexion électrique CEE : Encastrées à l’extérieur dans le cadre du toit sur le long pan

Eléments muraux :

Isolation thermique : Mousse Polyuréthane 60 mm (PU)
Epaisseur des panneaux 60 mm
Habillage extérieur : tôle profilée, galvanisée et laquée (épaisseur 0,6 mm). Résistance au feu A1.
Habillage intérieur: : Tôle galvanisée et laquée, épaisseur 0,5 mm, décor blanc
Cloisons de séparation : Tôle laquée, épaisseur 0,6 mm, couleur blanc (semblable au RAL 9010)

Porte :

Charnières à gauche ou à droite. Ouverture vers l’extérieur. Cadre de porte métallique avec joint sur trois côtés.
Battant de porte en tôle galvanisée et laquée des deux côtés – avec isolant polystyrène 40 mm d’épaisseur
Hauteur libre de passage : 875 x 2.125 mm
Dimensions de l’ouverture de porte : 811 x 2.065 mm

Fenêtre :

Cadre en plastique avec vitrage coloris blanc
Ouverture oscillo-battante
Dimensions : 945 x 1.200 mm
Vitrage isolant avec ajout de gaz : 4 / 16 / 4 mm
Hauteur du seuil de fenêtre (distance entre le sol et le haut du profil inférieur du cadre de la fenêtre): 870 mm

Installation électrique

Protection IP20
Tension : 230V / monophasé / 32A (3×6 mm²)
Fréquence : 50 Hz
Protection : interrupteur différentiel 40 A / 0,03 A, 2 pôles (230 V) type A X
Lumière : disjoncteur 10A, 2 pôles, 3×1,5mm²
Chauffage : disjoncteur 13A, 2 pôles, 3×2,5mm²
Prises électriques : disjoncteur 13 A, bipolaire, 3×2,5mm²
Prise de courant : 2 prises doubles
Eclairage: interrupteur lumière + 2 luminaires en applique à LED
Branchement : Raccordement extérieure CEE

 
 

Questions Fréquentes

Comment demander un devis ?

Demander un devis, c'est facile !

  1. Choisissez le(s) produit(s) que vous souhaitez dans votre devis
  2. Ajoutez-les dans votre panier
  3. Accédez à votre panier et cliquez sur "Recevoir mon Devis".
Comment ajouter un produit à ma liste de souhaits ?

  1. Allez sur la page du produit que vous souhaitez ajouter à votre liste de souhaits.
  2. Cliquez sur l'icône en forme de cœur à droite du bouton de commande.

Parfait ! L'article a été ajouté à votre liste de souhaits !

Vous souhaitez consulter votre liste de souhaits ? Cliquez alors sur le cœur en haut à droite au-dessus du menu.

Vous êtes satisfait de votre choix ? Il vous suffit d'ajouter le(s) article(s) de votre liste de souhaits à votre panier en cliquant sur "Ajouter au devis".

 

Que dois-je faire en cas de dommages ?

Vous pouvez renvoyer l'article en contactant notre Service Technique

 

Que dois-je faire en cas de problème avec mon produit ?

Avez-vous une question sur vos produits achetés ? Un défaut technique ou avez-vous besoin
de pièces de rechange ? Contactez notre Service Technique


Quelle est la garantie du produit ?

Si le produit acheté par le client présente un défaut de conformité, le client peut invoquer la garantie légale. Cette garantie ne s'applique pas à l'usure normale du produit. Toutes les pièces qui doivent être remplacées à la suite d'un défaut seront expédiées gratuitement ou montées si nécessaire.

Garanties
Consommateur (pas de n° TVA)
Entreprise (n° TVA)
Nouveau produit
2 ans
1 an
Produit d'Occasion
1 an
1 an
Produit réparé
3 mois (sur la réparation)
3 mois (sur la réparation)

La période de garantie commence le jour de la livraison. Les marchandises sont renvoyées à nos frais pendant la période de garantie. Les articles retournés doivent être emballés dans leur emballage d'origine, non endommagé.

Vous pouvez demander une garantie en contactant notre Service Technique.


Je souhaite faire réparer le produit que j'ai acheté. Que dois-je faire ?

Vous souhaitez faire réparer vos articles par notre service après-vente ? C'est tout à fait possible !

Si la réparation est effectuée pendant la période de garantie, l'article peut nous être envoyé gratuitement en cas de défaut. Vous souhaitez faire réparer un article qui n'est plus sous garantie ? Dans ce cas, les frais de transport sont à la charge du client.

Vous pouvez demander une réparation en contactant notre Service Technique.

Comment créer un compte client ?

Votre compte est votre espace personnel sur notre site www.alphaequipements.com

Votre compte vous permet de :

  • Consulter vos informations (factures / adresses de livraison)
  • Modifier les données de votre compte (mot de passe / login)
  • Ajouter une nouvelle adresse de livraison. Une adresse de livraison existante ne peut pas être modifiée dans votre compte. Veuillez contacter notre service clientèle pour le faire.
  • Consulter vos commandes et devis
  • Consulter votre liste de souhaits et commander si vous le souhaitez
  • Consulter vos cartes cadeaux
Comment utiliser un code promo ?

L'ajout d'un code promo à votre panier d'achat se fait comme suit :

  • Placez le(s) produit(s) que vous souhaitez commander dans votre panier d'achat
  • Cliquez sur "Ajouter au panier"
  • Saisissez votre code promo dans la rubrique "Ajouter un code promo".
  • Cliquez sur "Ajouter" pour l'activer

La promotion sera automatiquement appliquée à votre commande.

Comment passer une commande ?

Passer une commande sur notre site est très simple !

  1. Ajoutez les articles souhaités à votre panier
  2. Valider le panier
  3. Vous avez un code promo ? Vous pouvez alors l'ajouter au panier en cliquant sur "Ajouter un code promo ?
  4. Choisissez ensuite votre mode de paiement et confirmez nos conditions générales.
  5. Cliquez sur "Commander" pour procéder au règlement de la commande ou recevoir votre Devis.
  6. Votre commande n'est définitive que lorsque nous avons reçu votre paiement en bonne et due forme.

Les clients, qu'il s'agisse de particuliers ou d'entreprises, doivent passer leur commande en ligne sur notre site web. Nos informations sur les produits en ligne sont très détaillées et complètes, mais si vous avez des questions sur un produit, nous sommes à votre disposition par e-mail et par téléphone.


Quels sont les frais de livraison ?

Nous ne proposons pas de livraison gratuite à partir d'un montant de commande. Les frais de livraison vous seront communiqués par nos services après analyse de votre lieu de livraison.

Pour une commande de plusieurs articles, vous ne payez qu'une seule fois les frais d'expédition et non un supplément pour les frais de transport de chaque produit. Vous achetez vos articles au juste prix et ne payez que les frais de transport effectifs.

Les frais d'expédition indiqués sur la fiche produit peuvent varier selon les critères suivants :

  • la quantité commandée : si vous achetez plusieurs pièces du même produit, les frais peuvent être plus élevés dû à l’augmentation du poids et du volume
  • la zone de livraison

Quel taux de TVA est appliqué ?

Lors de la vente aux consommateurs, le taux de TVA du pays du consommateur sera appliqué.

Les Prix affichés sur notre site inclus la TVA.


Est-ce que je peux suivre mon paiement ?

Oui, vous pouvez facilement suivre l'état de votre paiement en utilisant les informations ci-dessous pour chaque méthode de paiement disponible.

  • Si paiement par virement bancaire :
    Un délai de 48h est à observer si paiement par virement bancaire. S'il s'agit d'un virement instantané, seules 24h seront nécessaires pour le voir apparaître sur notre compte. Ces délais sont indépendants de notre procédure de paiement.
  • Si paiement par carte :
    Une fois vos coordonnées bancaires saisies et votre panier validé, une des situations suivantes peut être rencontrée:

    • Situation 1 : Votre commande est automatiquement validée. Nous avons bien reçu votre paiement, un mail de confirmation vous est envoyé avec votre référence de commande. Merci de consulter également vos courriers indésirables (spams). Vous pouvez dès maintenant, en vous connectant sur votre compte client, retrouver votre commande ainsi que son état.
    • Situation 2 : Suite au paiement effectué par carte bancaire, la page de paiement après validation de votre panier fait place à la page de contrôle de votre banque. A cette étape, votre banque vous demande de vous authentifier pour sécuriser votre achat et déclencher la commande. Le système d'authentification est déterminé au préalable par votre établissement bancaire. Il est très fréquent que ce système passe par l'envoi d'un SMS avec un code à usage unique, qui sera à renseigner sur la page contrôle de votre banque. Si toutefois vous avez un autre système d'authentification, pas d'inquiétude, suivez les instructions. En cas de besoin, vous pouvez vous rapprocher de votre banque.

Pendant combien de temps puis-je apporter des modifications à ma commande après l'avoir passée ?

Ajouter des articles :
Si votre commande n'a pas encore été expédiée, vous avez deux possibilités pour ajouter des articles :

  • Passer une commande supplémentaire : cette option est préférable si votre commande a déjà été expédiée.
  • Annuler la commande en cours et en passer une nouvelle : cette option n'est possible que si votre commande initiale n'a pas encore été expédiée.

Retirer des articles :

  • Si votre commande n'a pas encore été expédiée, vous pouvez toujours annuler un article
  • Si votre commande a déjà été expédiée, l'annulation n'est plus possible. Nous vous conseillons donc de refuser le colis à la livraison. Veuillez noter que si vous refusez la livraison, et conformément à la loi sur la révocation, le détaillant a le droit de déduire les frais de retour et d'expédition de votre remboursement.

Modification de vos coordonnées :

  • Si votre commande n'a pas encore été expédiée : vous pouvez nous contacter pour modifier l'adresse de livraison si cela n'entraîne pas de frais supplémentaires pour le transporteur. Si votre commande est déjà en cours d'acheminement, nous ne pouvons plus modifier l'adresse de livraison.

N'hésitez pas à contacter nos conseillers pour vous aider !


Où puis-je trouver ma facture ?

Votre facture est automatiquement envoyée par mail après expédition de la marchandise. N'hésitez pas à regarder dans vos spams si elle y figure.

Si jamais vous ne l'avez pas reçue, merci d'envoyer un mail à contact@alphaequipements.com afin que notre service clientèle vous l'envoie dans les meilleurs délais.

Quand puis-je m'attendre à recevoir ma livraison ?

Dès que votre commande est prête à être expédiée, vous recevrez par e-mail un code de suivi (Track and Trace) avec les informations de livraison de votre commande. Vous pourrez ainsi suivre de près votre envoi.


Je n'ai pas reçu de code track & trace ?

Le code de suivi est envoyé par e-mail. Vérifiez également vos spams. Vous n'avez toujours rien reçu ? Contactez-nous via contact@alphaequipements.com


Comment fonctionne le suivi de ma livraison ?

Le suivi de la livraison de votre colis est dynamique et évolue en fonction de l'avancement de la tournée du livreur.

  • Restez vigilant, le livreur peut vous contacter par email, sms ou téléphone pour prendre rendez-vous, il est possible que ce contact se fasse via un "numéro masqué".
  • Si votre produit est volumineux, il peut être envoyé par un transporteur externe spécialisé, ce qui peut retarder légèrement la livraison.
  • Lors de la réception de la marchandise, vérifiez le contenu complet et les étiquettes collées sur le dessus de chaque boîte pour confirmer le nombre total de paquets qui vous seront livrés.

Que dois-je faire si le produit est arrivé endommagé ?

Nous vous demandons de vérifier l'état de vos produits dès leur réception. La réclamation doit être introduite 48 heures après la réception de la marchandise.

Il est essentiel que vous demandiez à inspecter les produits dans votre colis.
En cas de problème ou si vous avez les moindres doutes, refusez la livraison.

Si un produit commandé est manquant, incomplet ou endommagé, faites clairement part de vos observations par écrit sur le bon de livraison.

N'oubliez pas que les réserves générales telles que "sous réserve de déballage" n'ont aucune valeur légale ou contractuelle. Vous devez donc émettre une réserve spécifique. Dans le cas contraire, nous ne pourrons pas intervenir en cas de dommage. Merci de nous envoyer une copie le plus rapidement par mail.

Comment puis-je retourner un produit ?

Vous pouvez demander un retour en contactant notre Service Technique.


Quelle est la politique de retour générale ?

Après réception de votre commande, vous disposez d'un délai de 14 jours calendaires pour décider si vous souhaitez conserver votre commande.

Les marchandises doivent être inutilisées, intactes et dans leur emballage d'origine intact, y compris tous les accessoires fournis. Si cette condition n'est pas remplie, 25 % sera déduit de l'avoir.

Vous pouvez demander un retour en contactant notre Service Technique.

Le remboursement des frais de transport dépend de votre situation :

  • Vous avez reçu votre article, mais vous souhaitez le renvoyer dans le délai de 14 jours : veuillez nous contacter par e-mail et nous organiserons le retour. L'étiquette de retour vous sera envoyée, mais les frais seront à votre charge, ainsi que les frais d'envoi.
  • Vous avez refusé votre article auprès du transporteur : les frais de retour et d'expédition seront alors automatiquement déduits de votre remboursement dès que nous en aurons pris l'initiative.
  • Si vous avez constaté une anomalie sur votre produit à la réception (défectueux) : les frais de retour sont à notre charge.
  • Si votre produit ne fonctionne pas ou plus après une ou plusieurs utilisations : nous prenons en charge les frais de retour.
Comment savoir si un e-mail, un appel ou un sms reçus est frauduleux ?

Vous avez reçu un appel, sms ou un e-mail et vous doutez de sa fiabilité, voici trois éléments qui vont vous permettre de savoir si un message est frauduleux:

  • S'il annonce que vous avez gagné un gain alors que vous n'avez participé à aucun tirage au sort ou jeu ;
  • Si le message contient des fautes d'orthographe ;
  • S'il vous demande vos identifiants, mot de passe ou vos coordonnées bancaires.

Si un SMS ou e-mail vous parait suspect :

Vous ne devez pas cliquer sur le lien et n'ouvrez aucune pièce jointe. Signaler cet e-mail comme indésirable/phishing.

Pour éviter que d'autres personnes soit touchées par ce spam, merci de bien signaler le mail comme frauduleux.


Vous utilisez cookies et pourquoi ?

Pour faciliter votre navigation, nous utilisons des cookies. Les cookies sont de petits fichiers texte temporaires qui sont stockés sur votre appareil lorsque vous visitez notre boutique en ligne. Lorsque vous visitez à nouveau notre boutique, nous pouvons récupérer toutes sortes d'informations utiles grâce aux cookies stockés. Nous ne vous reverrons plus ? Dans ce cas, nos cookies disparaîtront au bout d'un certain temps.

L'utilisation de cookies nous permet de vous offrir une expérience optimale sur notre site web. Il va de soi que nous traitons avec soin les données que nous recueillons auprès de vous.

Vous pouvez indiquer si vous le souhaitez ou non en acceptant ou en refusant ces cookies lorsque vous visitez notre site web. Nous conservons également la trace de vos préférences en matière de cookies. Vous ne devrez donc pas toujours les accepter à nouveau.


Qu'est que le "phishing" et comment m'en protéger ?

Le "phishing" ou le "hameçonnage" en français, est une technique illégale pour obtenir des informations confidentielles (mot de passe, identifiant de connexion, numéro de carte bancaire, etc...) ou une technique qui va vous pousser à faire des opérations financières.

Pour éviter le "phishing", voici plusieurs indices qui peuvent vous aider.

  • Si vous réglez un achat en ligne et que vous devez ainsi fournir des informations concernant votre carte bancaire, vérifiez que vous êtes sur un site dont l'adresse contient : "HTTPS". Un petit cadenas vous indiquera si le site est fiable.
  • Vérifiez que votre antivirus est à jour pour maximiser vos chances de protection contre de potentiels virus.

Quelles sont les données collectées et pourquoi ?

Alpha Equipements respecte votre vie privée et prend donc la protection des données au sérieux.

C'est pourquoi nous voulons être transparents sur les données que nous recueillons auprès de vous, sur les raisons pour lesquelles nous les recueillons et sur l'usage que nous en faisons.

Pour que votre expérience sur notre boutique en ligne soit la plus agréable possible, nous vous demandons certaines données personnelles. Nous recevons ces données par le biais des informations que vous saisissez vous-même lors de la création de votre compte ou lorsque vous contactez notre service clientèle. Des informations sont également collectées automatiquement lorsque vous visitez notre site web, par exemple par le biais de cookies.

Vous avez la possibilité de ne pas fournir certaines informations, mais cela peut vous empêcher d'utiliser tous nos services.

Ma question n'est pas dans la liste.

Vous n'avez toujours pas trouvé de réponse ? N'hésitez pas à nous envoyer un message. Nous vous répondrons dans les plus brefs délais.

TEST DES PRODUITS

en atelier par nos techniciens

+ DE 15.000 RÉFÉRENCES

choisies par nos experts

SERVICE CLIENT DISPONIBLE

par chat, e-mail et téléphone

DES DIZAINES DE MILLIERS

de clients satisfaits

PAIEMENT 100% SÉCURISÉ

CB, PayPal ou Virement

ESPACE DE STOCKAGE

de plus de 20.000 m²